
108 Chipping Alley
Floresville, Texas
$283,950
$139/sqft
Overview
Bedroom
4
Bath
3
Year Built
2023
Sqft
2,042
Property Type
SINGLE_FAMILY
Description
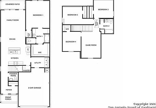
The Hanna is a two-story home featuring 4 bedrooms, 2.5 baths, and 2-car garage. The entry foyer leads to a powder bath before opening to the kitchen, dining, and family rooms in an open concept floor plan. The gourmet kitchen includes granite counter tops, stainless steel appliances, and a kitchen island overlooking the family room. The downstairs first bedroom features an attractive ensuite a separate water closet, granite vanity countertop, and a large walk-in closet. The second story includes all secondary bedrooms, second full bath, and upstairs game room. A rear covered patio is located off the family room and is built standard. Additional features include sheet vinyl flooring in entry, living room, and all wet areas, granite bathroom countertops, and full yard landscaping and irrigation. This home includes our HOME IS CONNECTED base package. Using one central hub that talks to all the devices in your home, you can control the lights, thermostat and locks, all from your cellular device.
Listed by Keller Williams Heritage
Features & Amenities
- One Living Area
- Separate Dining Room
- Eat-in Kitchen
- Kitchen Island
- Game Room
- Utility Room Inside
- All Bedrooms Upstairs
- Open Floorplan
- Walk-In Closet(s)
Location
Buy with the best & sell with confidence
Find a recommended local agent.
