Raleigh Plan, Bethany Creek Park

Richmond, Virginia

$474,990

$211/sqft

For Sale Listed 24 days ago 8 views
Overview

Bedroom

3

Bath

3

Year Built

2023

Sqft

2,251

Property Type

SINGLE_FAMILY
Description

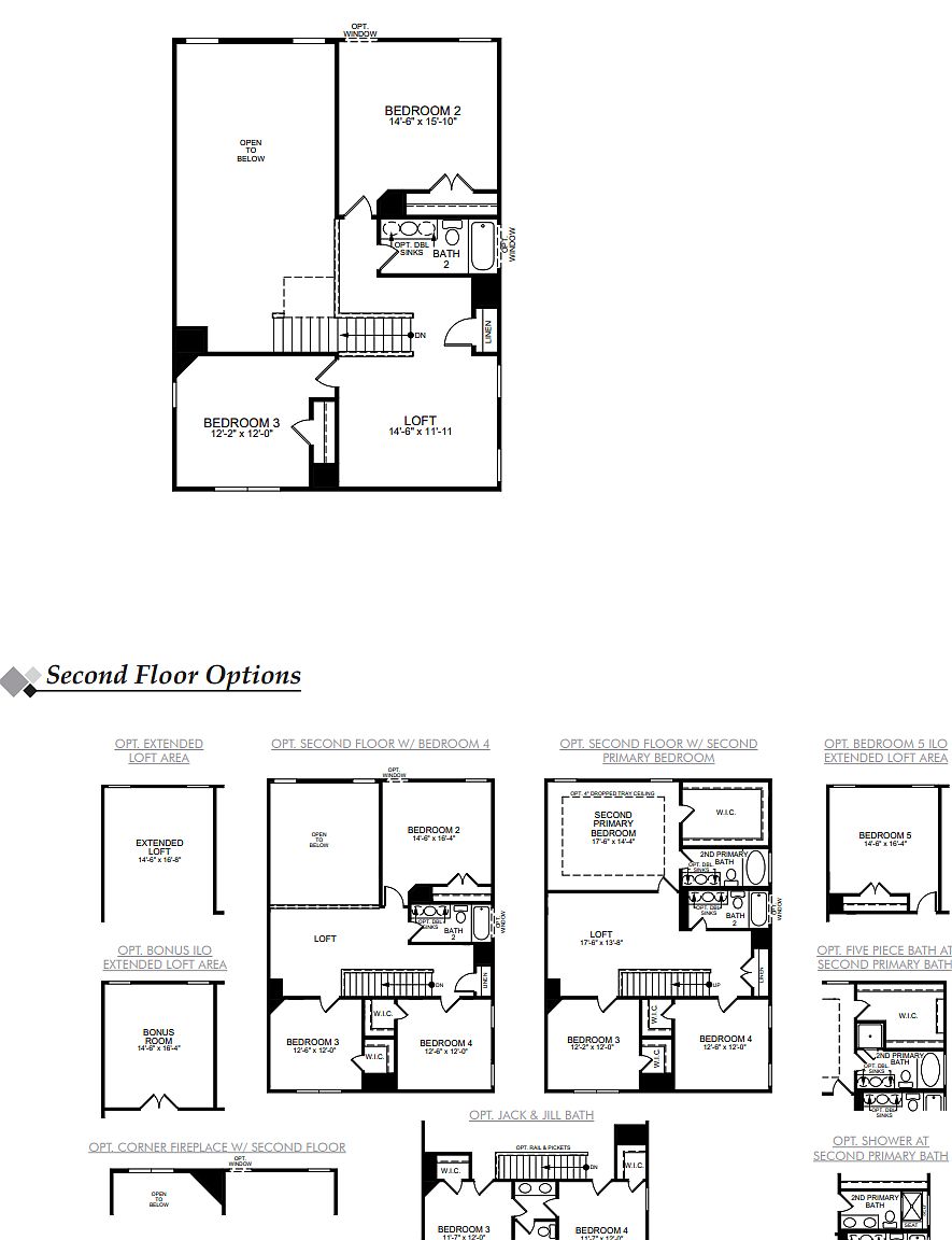
The Raleigh is a four bedroom two and a half bath home with a first floor primary bedroom a formal dining room first floor laundry a kitchen with an island and pantry and a two story family room. The second floor features three bedrooms a full bath plus a loft area.

Listed by Eastwood Homes

Location
Interested in this property?

Contact us for more information or to schedule a viewing.

Find an Agent

Buy with the best & sell with confidence

Find a recommended local agent.