
40 Whitetail Dr
New Castle, Colorado
$850,000
Overview
Bedroom
3
Bath
3
Year Built
2026
Property Type
MULTI_FAMILY
Description
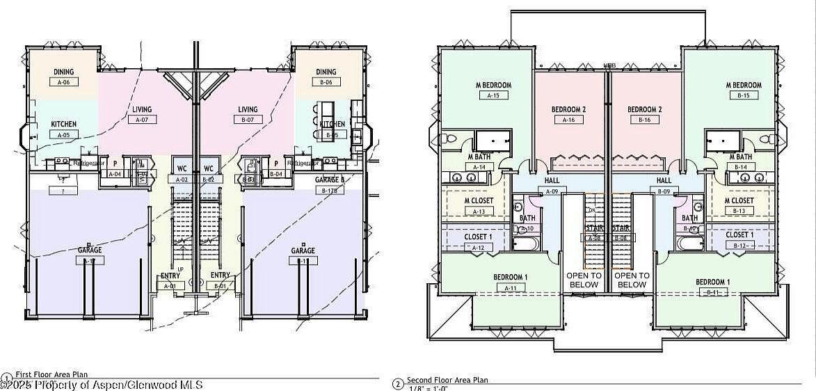
Breaking ground in August 2025, with a proposed completion date of September 2026, this half duplex offers the mountain style exterior finishes that Lakota Canyon Ranch is known for, with a floor plan and luxury finishes conducive to modern living. This gives prospect homebuyers in 2026 the opportunity to be the first... not only to live in this home, but to see it! The main floor living level boasts an open layout among the living room with a corner fireplace and access to the covered walkout patio, the dining room, and kitchen with a designated pantry. This level also contains the home's 2-car garage and laundry closet with a water closet for guest use, ensuring peace and serenity for all three bedrooms on the upper level. The upstairs primary suite is equipped with a generous walk-in closet and an ensuite full bath with a double vanity. The two guest bedrooms sharing a full bath in the hallway round out this 1,817.43 square foot home designed by Kinghorn Consultants and built by G&R Construction. Nestled in the Lakota Canyon Ranch neighborhood, home to the 18-Hole Championship Golf Course designed by James Engh and a Recreation Center including a club house, fitness center, outdoor swimming pool, tennis and pickleball courts, and a playground, this home is located amongst activities every outdoor enthusiast can enjoy within walking distance from the front door!
Listed by Coldwell Banker Mason Morse-Aspen
Location
Buy with the best & sell with confidence
Find a recommended local agent.
