
Lot 71 Gannet Trail
Waverly, Georgia
$599,000
$209/sqft
Overview
Bedroom
4
Bath
4
Year Built
2025
Sqft
2,869
Property Type
SINGLE_FAMILY
Description
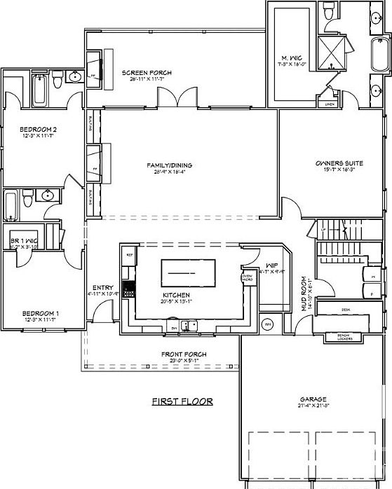
*Proposed Wassaw plan by Steve Casey Homes.* This stunning step-free open floor plan has it all—11’ ceilings, a chef’s kitchen, seamless indoor-outdoor living, and a 2-car garage. The bright main living space features oversized windows and 8’ French doors opening to a covered outdoor retreat with a brick fireplace and space for lounging and dining. The gourmet kitchen boasts KitchenAid appliances, double ovens, a gas cooktop, abundant cabinetry, a walk-in pantry, and an 8’ island filled with natural light. The primary suite offers the perfect blend of space and luxury, with a spa-like bath, zero-entry shower, soaking tub, and a large walk-in closet with linen storage. Two guest bedrooms, each with a full bath, sit opposite the primary suite. A mudroom/ flex space and laundry room are located near the garage. Upstairs offers a bedroom/office, full bath, bonus room, and conditioned storage. Located in Sanctuary Cove on a level, non-flood zone lot with buyer-selected finishes!
Listed by Engel & Volkers
Features & Amenities
- Built-in Features
- Double Vanity
- Entrance Foyer
- Garden Tub/Roman Tub
- High Ceilings
- Main Level Primary
- Primary Suite
- Separate Shower
Location
Buy with the best & sell with confidence
Find a recommended local agent.
